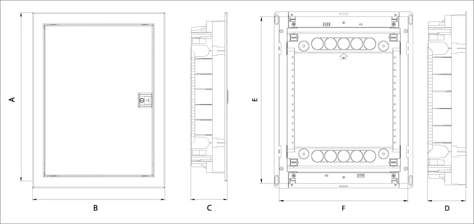
U 48 F ME
TipU zid / Knauf
Dimenzije717 x 346 x 96
Broj modula48+8
Broj PE, N klema2x20
Razvodne kutije su opremljene svim potrebnim delovima za ugradnju:
- DIN šina
- Izolovana klema za uzemljenje i nulu
- Poklopac slobodnog prostora
- Pribor za montažu
- Uputstvo za upotrebu i montažu
* Dodatne kleme po zahtevu klijenta
Sadrži

Poklopac praznog prostora / PP

Izolovana klema, standardna
Kompatibilno

Izolovana klema, dupla

Izolovana klema prema / australijski standard

Izolovana klema, bezvijčana

Bravica sa ključem za razvodne kutije

Spojnica za kućište, horizontalni spoj

Spojnica za kućište, vertikalni spoj

